Эдельвейс

2.54 млн ₽
в комплектации "Базовая"
Площадь
128 м²
Размеры
8×8 м
Комнаты
4 шт
Срок строительства
95 дней
Категория
Коттеджи (дома)
Этажность
1.5 этажа
Дополнения
Терраса, Второй свет
Популярность
92%

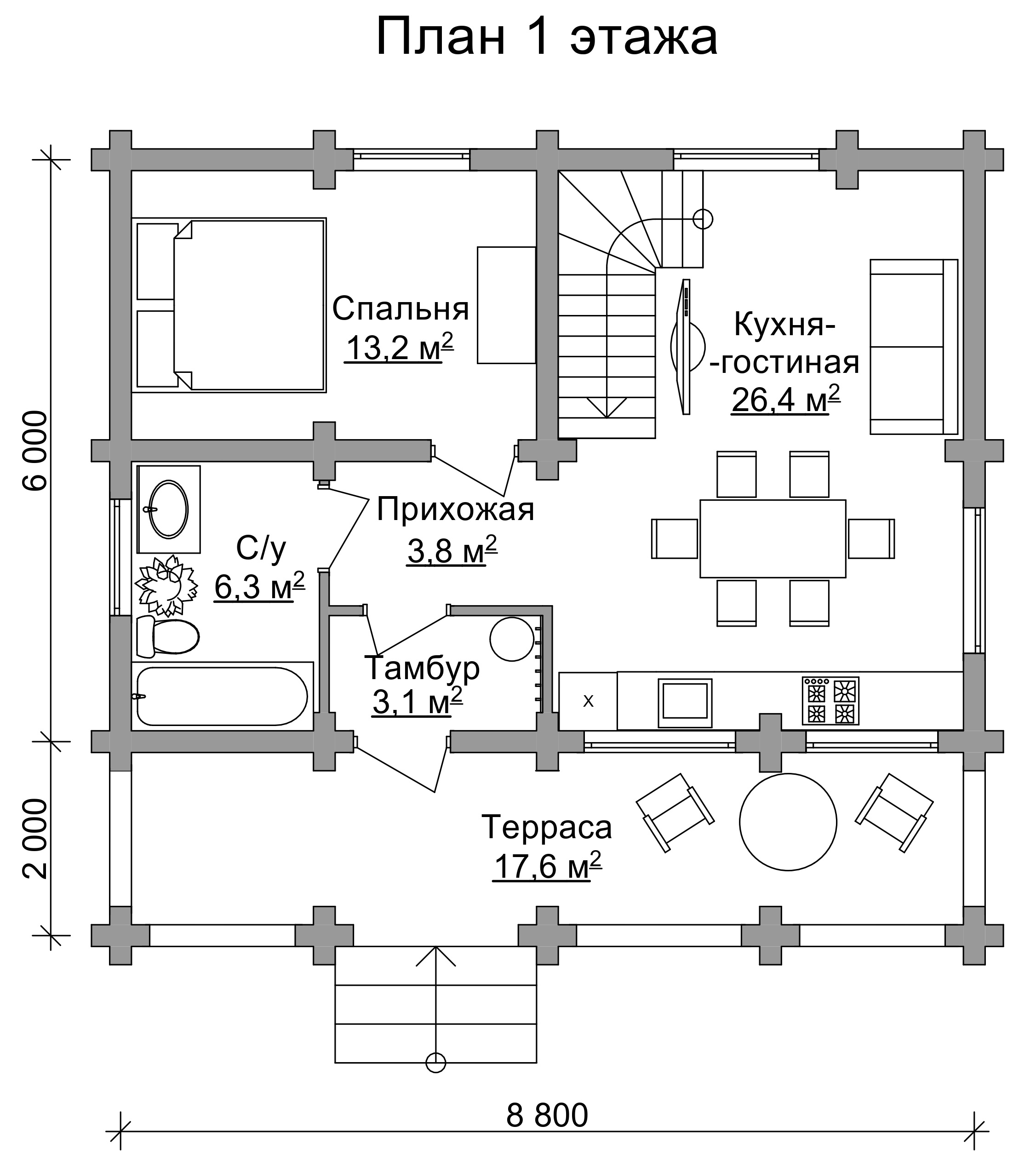
Планировка

Планировка 1
Планировка 2

Бесплатное проектирование

Для наших клиентов мы осуществляем бесплатное проектирование при строительстве у нас. Также мы можем подготовить проект на платной основе в случае строительства дома в сторонней организации.

Сравнение комплектаций

Базовая

2.54 млн ₽
Базовая комплектация включает домокомплект из сухого двойного бруса камерной сушки с утеплением, черновую кровлю, черновые полы и потолки, все прочие необходимые материалы а так же сборку (монтаж) на Вашем участке. Идеальный вариант для тех, кто планирует самостоятельно заниматься отделкой и инженерными коммуникациями.

Комфорт

4.58 млн ₽
Комплектация "Комфорт" включает всё из базовой комплектации, а также: фундамент, утепление полов и потолков, чистовую тёплую кровлю из металлочерепицы, покраску стен, установку окон и дверей. Оптимальный вариант для тех кто хочет полностью законченный вариант дома для самостоятельной прокладки инженерных коммуникаций.